Project: Bilthoven

Nieuwe badkamer, badkuip, verlichting, van hem en haar, sauna, moderne en badkamertegels..

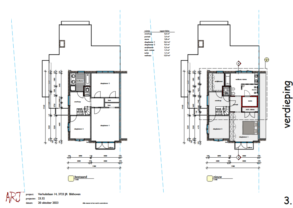
Verduurzaming en herindeling woning

Deze woning heeft een grondige verduurzamings- en moderniseringsslag ondergaan, met als doel meer comfort, energie-efficiëntie en een eigentijdse uitstraling.

De woning is voorzien van een hybride warmtepomp in combinatie met vloerverwarming en een volledig vernieuwde verwarmingsinstallatie, wat zorgt voor een duurzaam en comfortabel binnenklimaat. Daarnaast kreeg het dak nieuwe isolatie, en is het elektrische systeem volledig vernieuwd.

De indeling van de kamers is herzien om de woonruimte optimaal te benutten. Ook zijn er nieuwe houten kozijnen geplaatst en is de woning uitgerust met twee badkamers en één toilet. Het interieur is geheel gestuukt en geschilderd, met oog voor detail en afwerking.

Een bijzonder element in dit project is de realisatie van een wellnessruimte met sauna, waarmee luxe en ontspanning een vaste plek in de woning hebben gekregen.

Het eindresultaat is een energiezuinige en stijlvolle woning waarin moderne techniek, comfort en rust samenkomen.

Vorige
Vorige

Almere

Volgende
Volgende

De Bilt