Project: Almere

Eigen badkamer, nieuwe slaapkamer, houtwerk, schilderwerk, klimaatregeling, vloerverwarming.

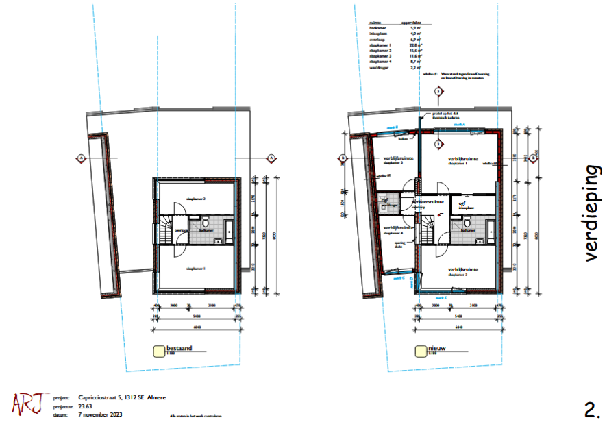
Verduurzaming en uitbreiding woning

Deze woning is volledig gemoderniseerd en verduurzaamd, met een sterke focus op comfort, energie-efficiëntie en een hoogwaardige afwerking.

Er zijn twee uitbouwen op de eerste verdieping gerealiseerd, waardoor de leefruimte aanzienlijk is vergroot. De woning beschikt nu over vloerverwarming in elke ruimte, elk met een eigen thermostaat, en een volledig vernieuwde verwarmingsinstallatie. Daarnaast is in elke kamer airconditioning aangebracht voor een optimaal binnenklimaat.

Aan de achterzijde zijn rolluiken geplaatst, het dak is geïsoleerd en volledig gerenoveerd, en het huis kreeg een nieuw elektrisch systeem en nieuwe houten kozijnen. Verder is de woning uitgerust met twee nieuwe badkamers en één toilet, en werd het interieur geheel gestuukt en geschilderd.

Alle vloeren zijn voorzien van nieuw tegelwerk met vloerverwarming, en het geheel wordt aangedreven door zonnepanelen met een opslagbatterij, waardoor de woning grotendeels energie-onafhankelijk is.

Als bijzondere toevoeging is er achter in de tuin een zeecontainer omgebouwd tot sauna en kantoorruimte. Onze betrokkenheid bij dit project betrof uitsluitend de volledige elektrische installatie – zowel in de woning als in de container. Voor de bouwkundige en interieurwerkzaamheden is samengewerkt met twee andere gespecialiseerde bedrijven.

Het resultaat is een moderne, duurzame woning die luxe, functionaliteit en energiezuinig wonen naadloos combineert.

Voor en na

Volgende
Volgende

Bilthoven